136 Credit LaneRichmond Hill, ON L4E 1G9




Mortgage Calculator
Monthly Payment (Est.)
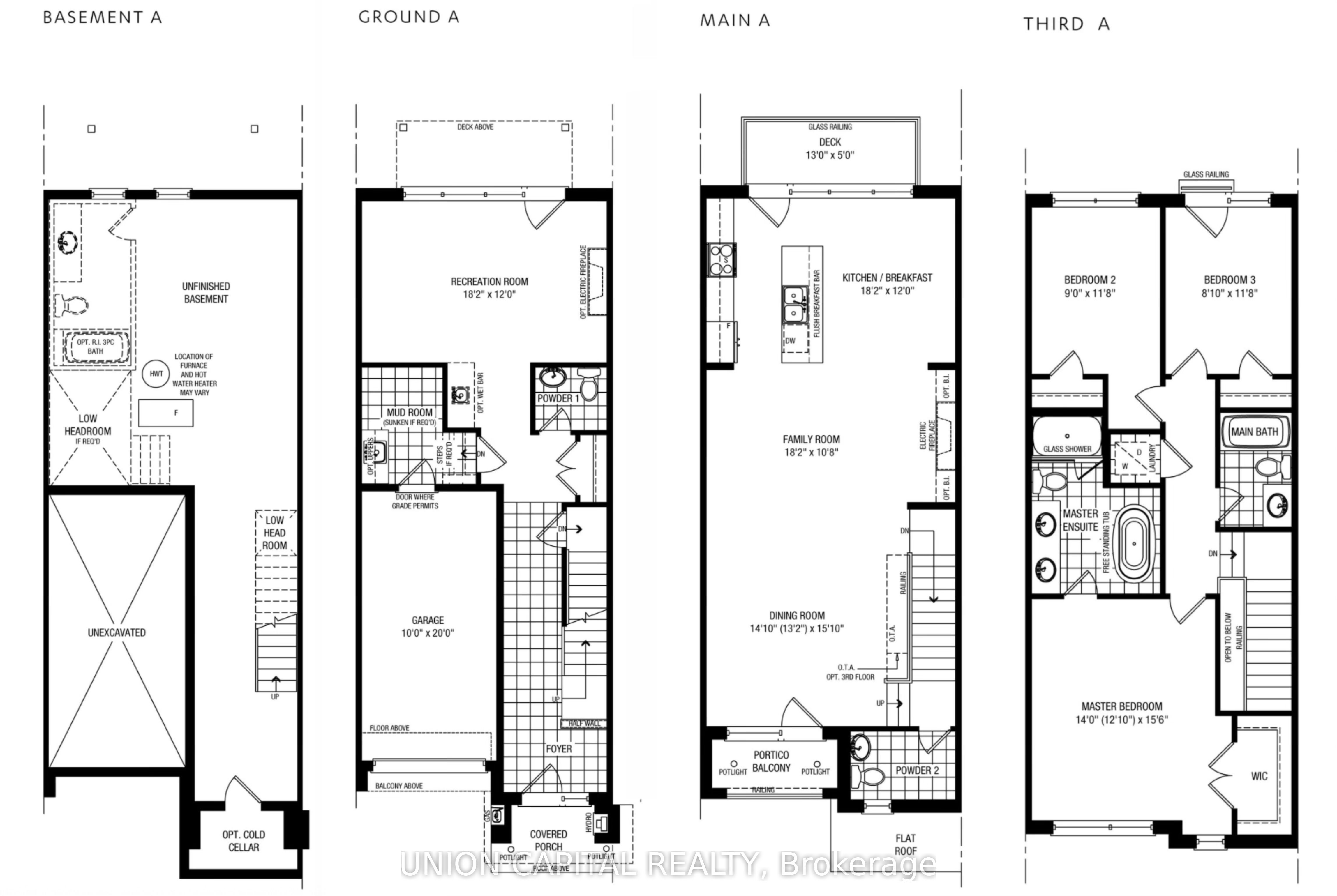
$16Premium ravine lot! An exceptional 3 storey urban townhouse located in the heart of prestigious Richmond Hill on Bayview Avenue. Featuring a huge backyard and a highly functional layout with 3 bedrooms + den and 4 bathrooms, plus the basement ,ideal for growing families or those seeking extra space. Includes 2 parking spaces(one garage + one driveway). Enjoy 10 ft ceilings in the living, dining, and kitchen areas, 9 ft ceilings on the upper level, smooth ceilings throughout, a cozy gas fireplace, and floor-to-ceiling windows that fill the home with natural light from all directions. Prime Richmond Hill location close to excellent private and public schools, minutes to Hwy 404, Costco, parks, trails, the lake, GO Transit.
| 2 weeks ago | Listing updated with changes from the MLS® | |
| 3 weeks ago | Price changed to $3,600 | |
| a month ago | Listing first seen on site |
Listing information is provided by Participants of the Toronto Real Estate Board. IDX information is provided exclusively for personal, non-commercial use, and may not be used for any purpose other than to identify prospective properties consumers may be interested in purchasing. Information is deemed reliable but not guaranteed. Copyright 2026, Toronto Real Estate Board
Last checked 2026-04-15 06:02 AM UTC