98 Millicent Street Rear SecondToronto, ON M6H 1W4




Mortgage Calculator
Monthly Payment (Est.)
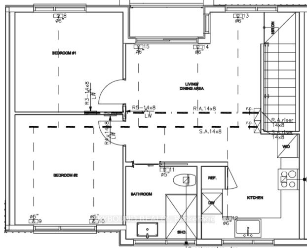
$12Beautifully finished 2-bedroom garden suite apartment featuring a private entrance and an open-concept living and dining area with Juliet doors leading to a shared backyard, perfect for BBQs and outdoor gatherings. The modern kitchen includes quartz countertops, a matching backsplash, and stainless steel appliances such as a dishwasher, fridge, and stove. The suite also offers in-suite stacked laundry, abundant natural light, and windows in every room. Both bedrooms are equal in size and generously proportioned. Water, gas, central air, heating, and in-suite laundry are all included. Completed in 2024, this newly built unit is located in a highly desirable area within walking distance to TTC, the subway, Dufferin Mall, Dufferin Grove Park, bakeries, Freshco, Walmart, Wallace Community Centre, Galleria Mall, the University of Toronto, and Toronto Metropolitan University. A fantastic location with everything you need just steps away.
| 4 weeks ago | Listing updated with changes from the MLS® | |
| 2 months ago | Listing first seen on site |
Listing information is provided by Participants of the Toronto Real Estate Board. IDX information is provided exclusively for personal, non-commercial use, and may not be used for any purpose other than to identify prospective properties consumers may be interested in purchasing. Information is deemed reliable but not guaranteed. Copyright 2026, Toronto Real Estate Board
Last checked 2026-01-14 01:52 PM UTC
Did you know? You can invite friends and family to your search. They can join your search, rate and discuss listings with you.