1755 Rathburn Road E 7Mississauga, ON L4W 2M8




Mortgage Calculator
Monthly Payment (Est.)
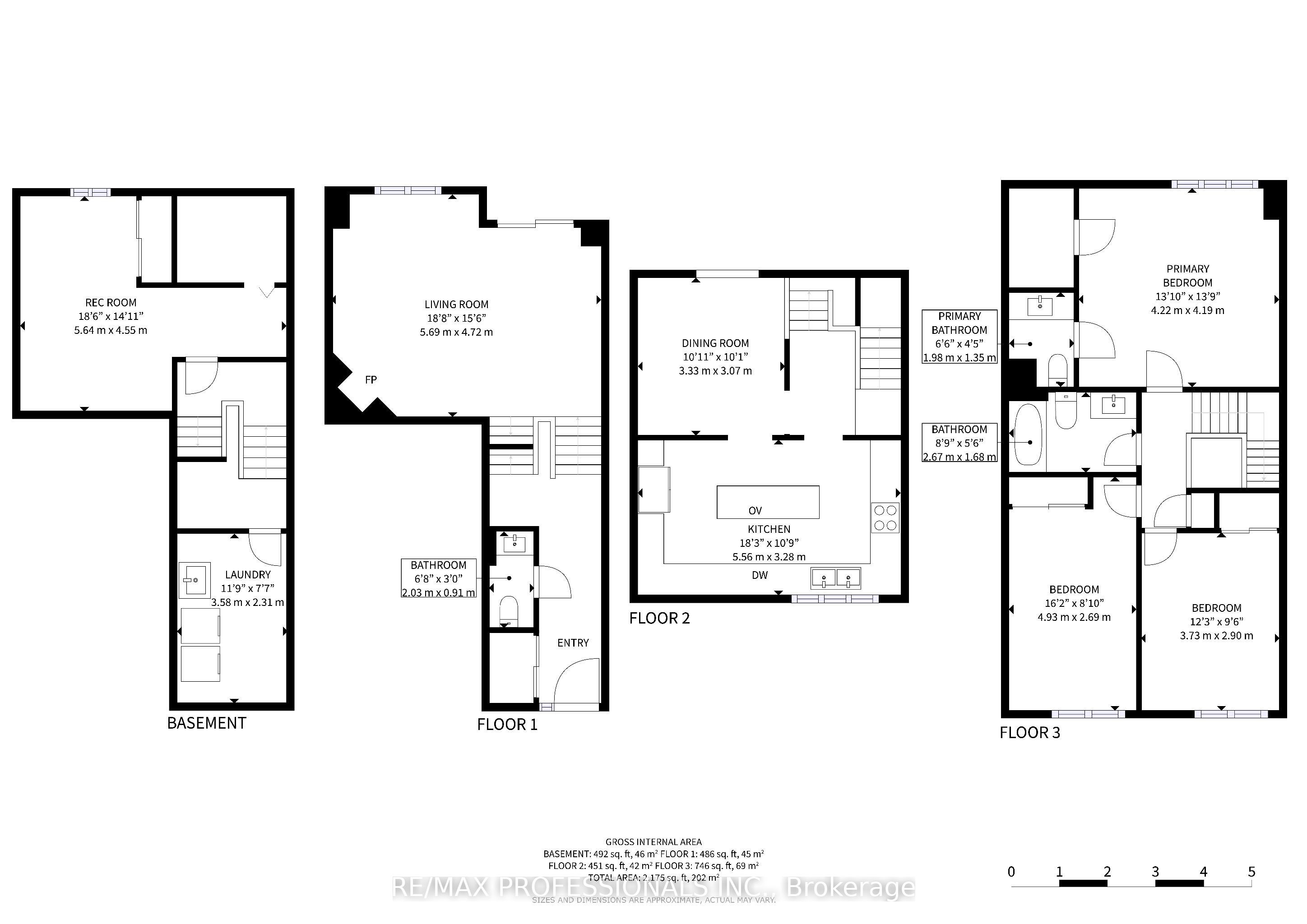
$3,873Welcome to this beautifully maintained 3-bedroom, 3-bathroom condo townhouse located in the highly sought-after Rockwood Village. Offering 2,175 sq ft of total living space and a single-car garage, this home features a bright, open-concept layout. With soaring 15-foot ceilings in the living room, the home's centerpiece is a stunning gourmet kitchen with full wrap-around granite countertops that provide exceptional workspace, functionality, and flow - ideal for comfortable everyday living and entertaining. Designed to impress, this home also showcases three modern bathrooms, two of which were fully renovated in 2024, offering modern finishes and a spa-like feel throughout. Enjoy peace of mind with major upgrades including new AC (2020), new roof (2021), new windows (2022), new siding (2024), and repaved roadways (2025). The community is also being enhanced with new doors coming in 2026. Maintenance fees include lawn care, landscaping, and snow removal. Steps to walking trails and just 400m to Longo's, Shoppers Drug Mart, and Starbucks, with close proximity to Sacred Heart Catholic Elementary School and easy access to Highways 403, 410, and 427. A move-in-ready home in a prime location.
| yesterday | Listing updated with changes from the MLS® | |
| 4 weeks ago | Listing first seen on site |
Listing information is provided by Participants of the Toronto Real Estate Board. IDX information is provided exclusively for personal, non-commercial use, and may not be used for any purpose other than to identify prospective properties consumers may be interested in purchasing. Information is deemed reliable but not guaranteed. Copyright 2026, Toronto Real Estate Board
Last checked 2026-04-04 11:19 AM UTC